磁力密封装置
详细介绍
产品总体概述:
随着化学工业技术的发展,越来越多的化工装置都往大型化、连续化目标发展,连续反应装置为多台反应器串联,当其中一台反应器的搅拌密封部件发生泄漏需要维修时,整条生产线必须立刻停产,扩大了停产损失,所以连续反应装置的密封可靠性要求更高。 磁力驱动装置具有密封可靠、操作安全的优点,使用过程中即使发生故障也不会导致反应器内物料的泄漏,给计划停车争取了时间,可降低停产损失。
组成结构概述:
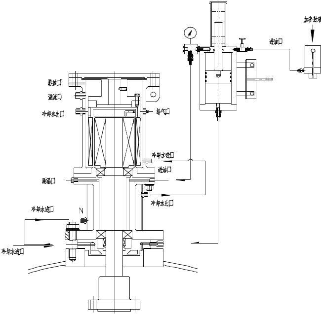
结构组成:有联轴器、机架、外磁钢、内磁钢、隔离套、轴承、机械密封(封闭润滑油腔)、搅拌轴。
1、磁力驱动装置的上下轴承座与隔离罩进行一体化设计,缩小隔离罩直径,提高磁传动效率,减少发热量,又使受压的薄壁隔离罩免受搅拌振动力的影响,提高了薄壁隔离罩的安全性。
2、上轴承降低位置至隔离罩中部,浸没在润滑油中,而内磁钢的一部分设置在润滑油的液面之上,使润滑油有自由液面,这样就避免了内磁钢转子总成在润滑油中旋转的功率消耗,提高了传动效率,而且稍许的失油不会影响轴承的润滑效果。
3、隔离罩内的搅拌轴采用柔性或刚性设计,使下轴承座提升至釜口,易冷却。
工作原理:
基本原理:磁力驱动系采用磁力耦合原理,即是用永久磁性联轴器的结构原理代替常用的联轴器(钢性,软性)。使传动系统在封闭受压腔内作同步转动,从而使设备内实现无泄漏操作的压力容器。由于它以静密封代替动密封,使传动体系在静密封状态下进行转动,彻底解决以前填料密封、机械密封无法克服的跑、冒、滴、漏现象。特别是对易燃、易爆、有毒、有害、加氢、氨化、高温、高压、高转速、高真空等系统,更加能显示出其优越性。
产品优势:
现在的一体式机械密封和磁力密封的优缺点,紧跟国外先进技术,杭州索孚公司设计制造出具有先进技术特点的磁力密封,已在工业生产中普遍应用,目前设备使用方反馈良好。
主要技术特点:
1、在密封隔离套内的轴承下端设置一套专有技术的机械密封系统,将轴承完全密封在稀油润滑油腔中,外接特制的压力平衡、补油系统。
2、良好继承磁力密封的静密封的优点,具有可靠的安全性。
3、油腔中轴承得到充分的润滑,散热,使用寿命高。
4、油腔中有形成油循环冷却的小回路,保证内部件无局部发热过大的问题,避免因局部发热造成设备损坏。
5、密封系统设计有应对油温膨胀机构,避免油温上升腔内压力升高造成往釜内大量泄露的问题。
6、应对气液固三相反应所需要的良好的三相接触面积,索孚公司设计的自吸式磁力密封可以应用于高转速的工况条件。
7、解决了冷却、润滑、油膨胀三项目前市场上磁力密封局限性,杭州索孚公司的磁力密封技术可以应用于大型工业化装置。
8、设计优良可靠,故障率低。
9、隔绝釜内物料与磁转子、轴承的接触,避免内构件受物料的损坏,拥有可靠的设备使用稳定性,
磁力耦合传动设备工作管路图:

产品应用工况:
1.硝基化合物氢化还原
2.脂肪氰加氢
3.羰基化
4.碳烷基化
5.硅烷基化
6.氧化
7.其它不饱和键加氢
索孚科技公司郑重承诺,凡购买我公司产品,一年内保修,终生维护。
功能搅拌开启高效生产,浙江索孚中国搅拌专家,购品质设备,选浙江索孚!
浙江索孚化工设备有限公司专业生产高速分散机、研磨机、乳化机、不锈钢拉缸,专门配套涂料,染料,颜料,油漆,油墨,胶合剂,树脂,药膏,化妆品,造纸,食品,橡塑,复合材料,绝缘材料,磁性材料,其它色浆等化工行业产品的液-固湿法分散、研磨、搅拌、均质、混合、溶解工艺。浙江本土分散机生产厂家,质量有保障,品质看得见, 售后就在您身边!








